- Ново
Структура за биде LIV (7030452911)
246,55 лв.
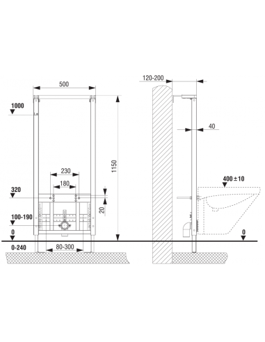
Структурите за вграждане Liv са предназначени за инсталиране в преградни стени, като свободно-стоящи елементи за пристенно инсталиране за сухи монтажи, за пристенно ъглово инсталиране и за универсални масивни инсталации инсталирани в стената.
Структура за биде LIV (7030452911)
Структура за вграждане на LIV за висящо биде, от здрав стоманен профил за сух монтаж.
Предимството на този начин за инсталиране на биде е, че цялата прилежаща арматура остава вградена и напълно скрита, а самото биде е окачено конзолно на структурата и пода под него остава удобен за безпрепятствено почистване. Височината на структурата може да се регулира посредством крачета (от 0 до 24 см.). В комплекта също са включени и всички части, необходими за монтиране и фиксиране на продукта.

- Производител
- Liv - словения
- Продуктов код
- 7030452911
- Вид
- Структура за биде
- Опаковка
- 1бр. в кашон